14713 Autumn Ridge Ln
Jones, OK 73049·East Lake Community
Modern/Refined Tudor
Located in the gated East Lake community just south of NE 150th on Post Road, this home offers wooded acreage lots, Edmond schools, and a peaceful setting minutes from Oklahoma City. Phase two lot reservations are now open for spring/summer contracts.
Bathroom Details: 5 private en-suite bathrooms + 2 powder rooms


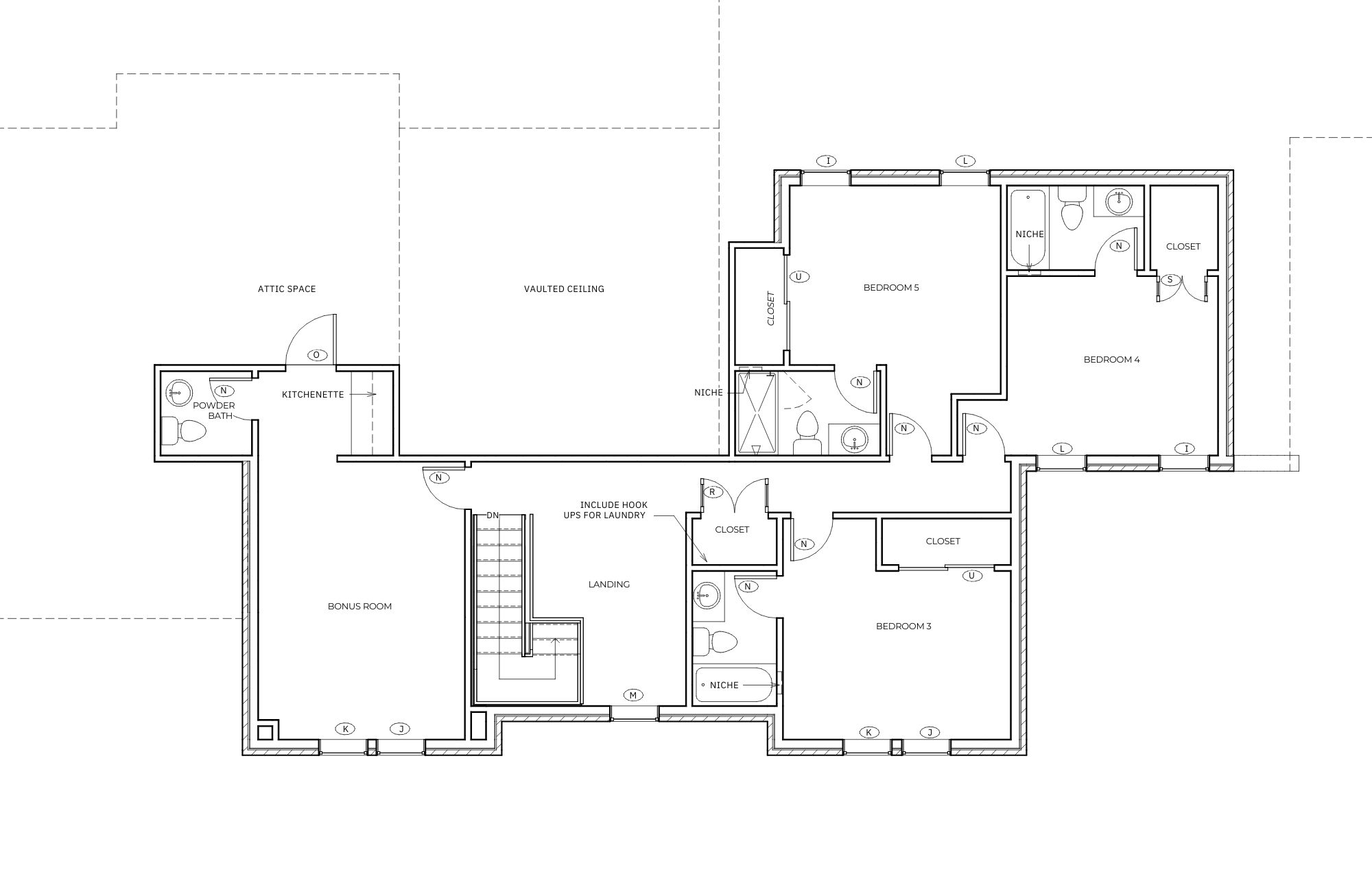
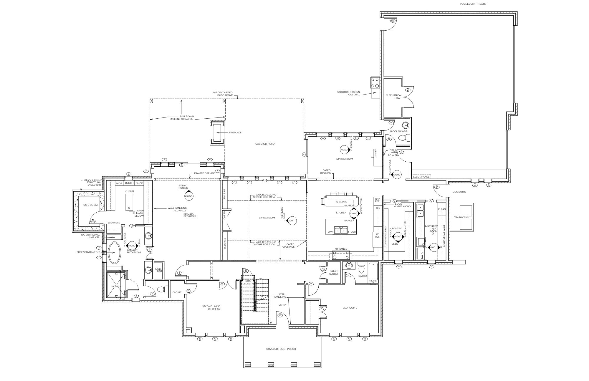
14713 Autumn Ridge Floor Plans
Luxury Design Details & Finishes
Explore the complete design package for this custom home, including detailed specifications, finish selections, and architectural drawings.
Download Full Design DetailsAbout East Lake & Autumn Ridge in Edmond
1/4 mile south of NE 150th on Post Road
- Gated entry
- Edmond Schools
- Beautiful wooded acreage lots
- Concrete streets and curbs
- Street lighting
Autumn Ridge is a prestigious wooded subdivision in northeast Edmond, located on Covell between Bryant and Coltrane, featuring a neighborhood pool and top-rated Edmond Public Schools.
We have access to more lots in the East Lake Neighborhood; phase two of the neighborhood is already taking lot reservations for spring/summer contracts.
Interested in This Home?
Fill out the form below and we'll reach out to schedule a showing.
Interested in This Home?
Fill out the form below and we'll reach out to schedule a showing.